関東版

物件番号 3116531 物件種目 工場
1枚目 2枚目 3枚目 4枚目 5枚目
事前連絡無しの現地訪問はご遠慮ください
★おすすめポイント★:2階建貸工場 240kgリフト 駐車スペース付 工業専用地域
賃料(月額) 127.82万円(消費税込み)
坪単価 7,700円
所在地 東京都大田区京浜島2丁目
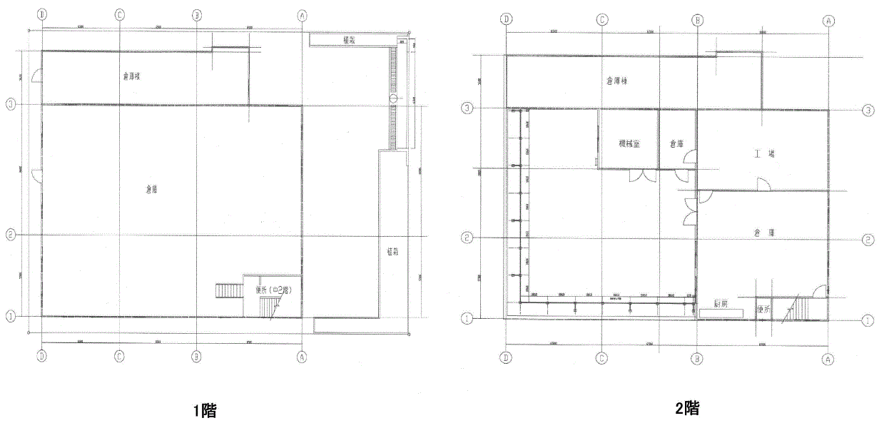
面積 建物面積:548.77m²/166坪
登録日 2025年12月11日
沿線/駅 東京モノレ/昭和島駅 徒歩20分以上
高速道路出入口
保証金等 礼金:1ヶ月
敷金:3ヶ月
管理費
構造/階数 鉄骨造/2階建ての1~2階部分
各階面積 1F:396.7m²/120坪 2F:152.07m²/46坪
接道状況 南 12m
駐車場
引渡し 相談
築年月 1983年3月
用途地域 工業専用地域 用途地域について
都市計画 市街化区域
路線価 路線価
建物登記
建築確認
設備関連 電気引き込み有 240kgリフト エアコン(残置物) 上水道 流し台 給湯器(残置物) トイレ
周辺状況 近隣民家無
その他 *保証会社加入要
前テナント様業種
取引形態 仲介
この物件に対する問い合わせ
複数の物件を問い合わせされる場合は、お気に入り登録からの一括問い合わせをご利用ください。
※「①」や「㈱」等の機種依存文字は文字化けすることが多いのでなるべくお控えください。

お気に入り一括問い合わせはこちらから
貴社名
担当者名とどちらか必須入力
ご担当者名
会社名とどちらか必須入力
業種
移転区分 必須入力
お電話番号
必須入力
E-mail
必須入力
お問い合わせ内容
個人情報の取り扱いをご確認ください。